 
        
        
      
    
    Hey Spark Street Digital Team!
My name is Donald “DJ” Mirisola. Check out my work:
Here’s what I do.
I’m a technical multimedia producer with a passion for telling stories and staying on the cutting edge of digital media. With a background in both Digital Storytelling and A/V Engineering, I combine my knowledge of Audio-Visual engineering with my passion for digital storytelling. I reside in Washington D.C. and I love finding new ways to connect with my audience. I’m hungry for knowledge and I’m excited about all aspects of video editing, audio/video production and motion graphics.
 
        
        
      
    
    Here are some projects the Spark Street Digital team might like:
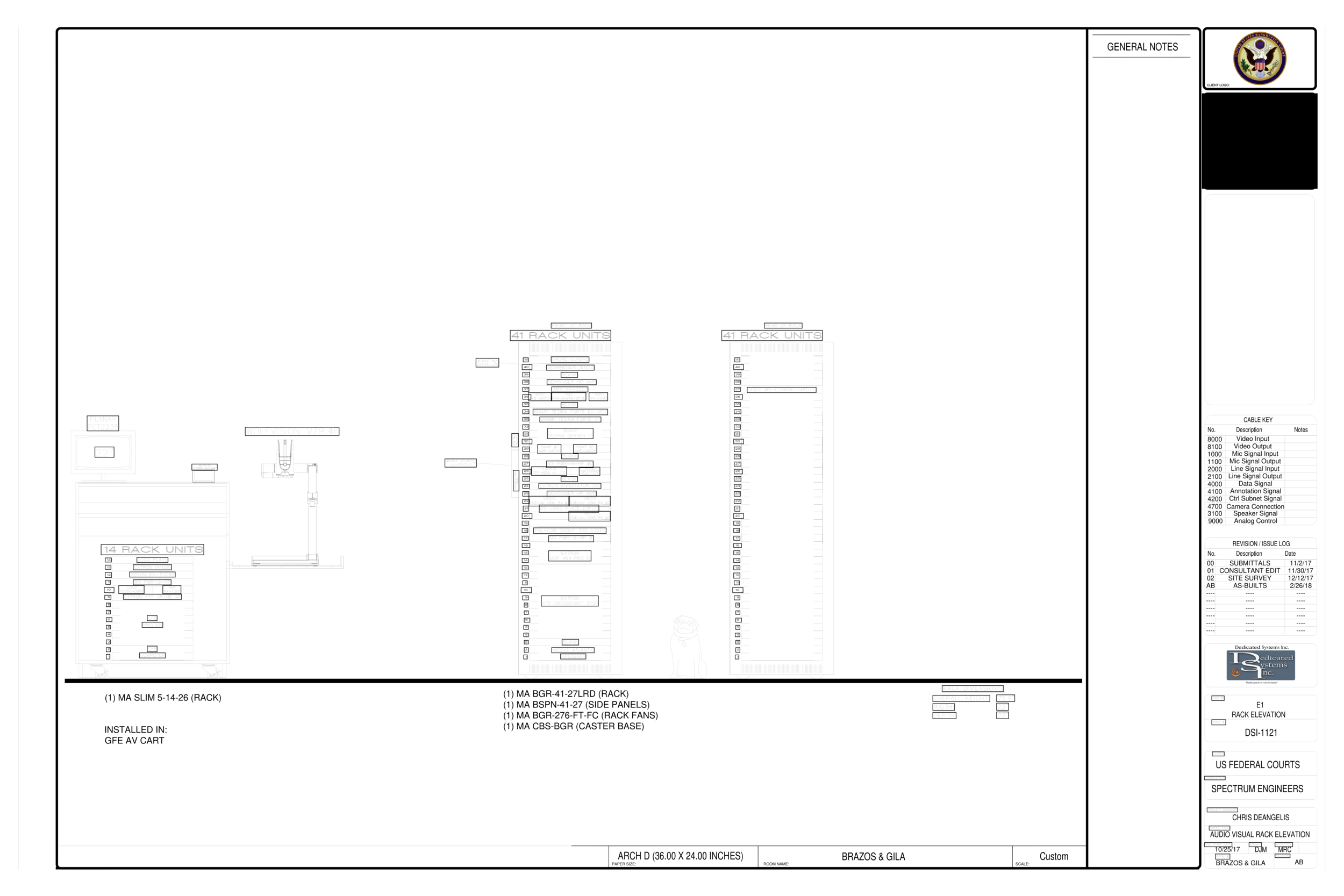
District of New Mexico: Brazos & Gila Courtrooms
I was the head engineer on this project for Dedicated Systems Inc. Contracted to install an evidence presentation system for the Federal Courts, I led DSI through the pre-install and post-install process. I designed all materials using Microsoft and Autodesk products.
The system includes a 40 Input/33 Output Biamp Tesira Server Audio distribution system with a 12 Input/23 Output Extron XTP Crosspoint Video Matrix. There is also full Video Teleconference routing as well. The AMX NX3200 control processor is used to allow the client full matrix control of both audio and video system via the POE+ 10 inch touch screen. The design was done based on a simple spec drawing provided by the consultant. I designed and oversaw all aspects of execution of the hardware signal flow design. I also provided the client with End User Documentation.
 
        
        
      
           
        
        
      
           
        
        
      
           
        
        
      
           
        
        
      
           
        
        
      
           
        
        
      
           
        
        
      
           
        
        
      
           
        
        
      
           
        
        
      
           
        
        
      
           
        
        
      
           
        
        
      
           
        
        
      
           
        
        
      
           
        
        
      
           
        
        
      
           
        
        
      
           
        
        
      
           
        
        
      
           
        
        
      
           
        
        
      
    Montgomery College Graduation 2019
This production required every member of the MCTV team. The entire tv and livestream production was completed by this team. My main duties on this project were to assist engineering in setting up the livestream and wireless HDMI transmission system, camera operation, cable management and setup. This was a 3 full day production and we captured many students exciting final steps through college.
Graduating COVID
This production was created for MCTV’s Outlook Montgomery Project. In this video, I completed all aspects of production entirely while quarantined. This documentary was created using traditional Zoom messaging software, and a Panasonic GH5. The motion graphics and animation were generated in CreateStudio & Adobe Creative Suite.
#RadioCamper2020
Tasked with covering the perspective of U.S. citizens and the election, Radio-Télévision Suisse had two journalists travel from the southern border to the northern border. I was put in charge of all video production that accompanied every radio and web story. These videos were pitched, produced, shot and edited in an 18 hour turnaround time. These videos went on to capture a combined 10,000+ view across their social media and web channels. Videos were produced using a Panasonic GH5, Samsung A51 and were edited with the Adobe Creative Suite. I assisted and worked on all aspects of this production.
Links to Stories:
On the road verso le elezioni in USA
Translated: On The Road Towards The Elections in the USA
In campagna ai tempi del Covid
Translated: In the Countryside at the Time of COVID
Nella capitale del razzismo USA
Translated: In the Capital of US Racism
I cow boy del rodeo
Translated: The Cowboys of the Rodeo
La Miami del Texas
Translated: The Miami of Texas
TBD Immersive:
Cabaret Rising
This was such a unique production. I was in charge of the audio production. Created as an “Immersive Theater” event, I was given an extremely shoe string budget. I had to manage a small audio install team, engineer entire workflow drawings and commission the entire production in less than an 8 hour period. In the end 24 recycled ceiling speakers were installed across the entire 55,000 sq. ft. Dupont Underground Art Gallery. Along with several separate remote speaker systems within a moving trolley train car. For more information about this project, check out my write up on the experience.
 
        
        
      
    
     
                        


